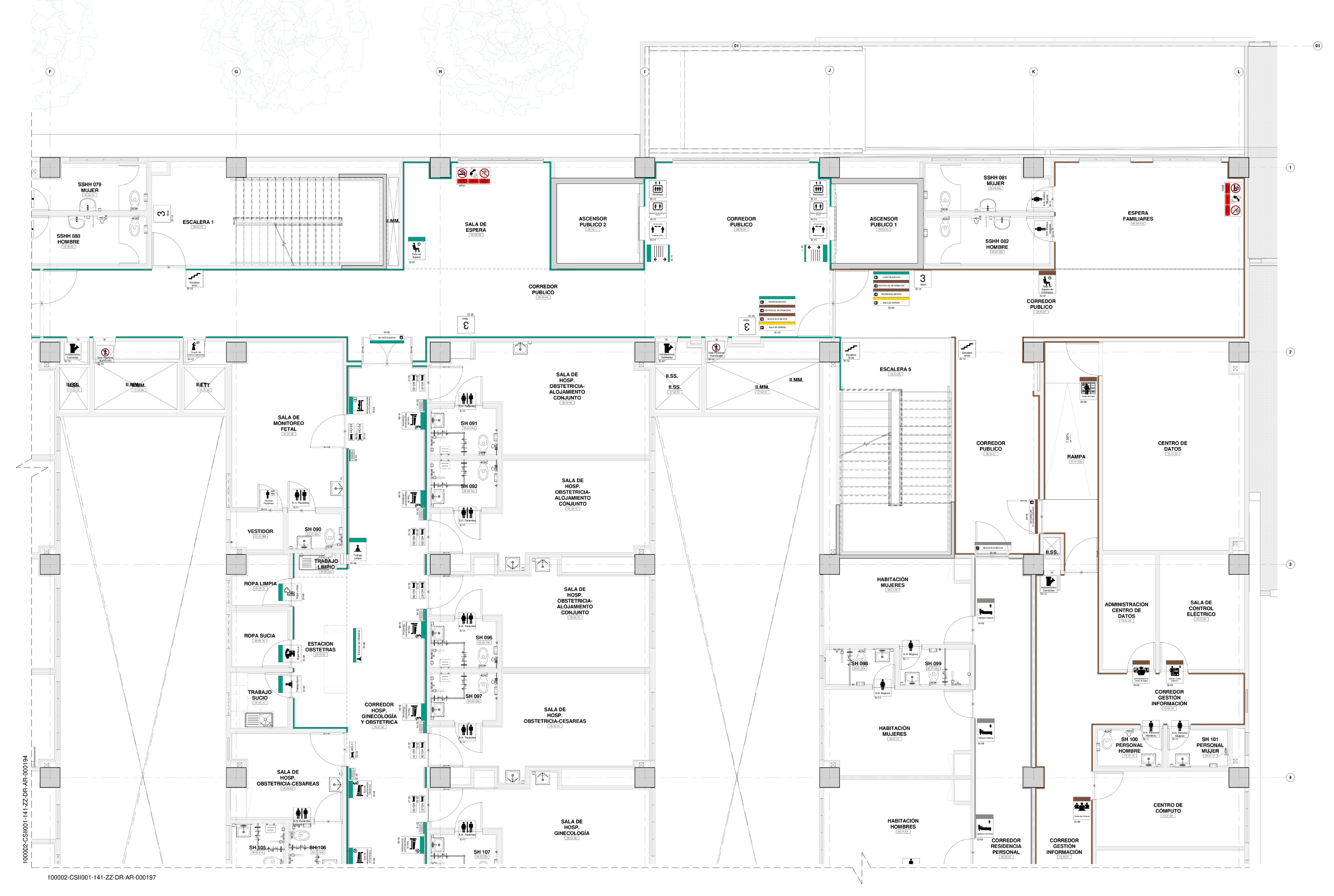
Hospital Casma

Ubicación: Casma

Alcance del trabajo:

  • Planimetria
  • Modelado 3D LOD3

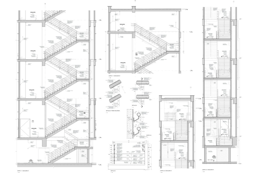
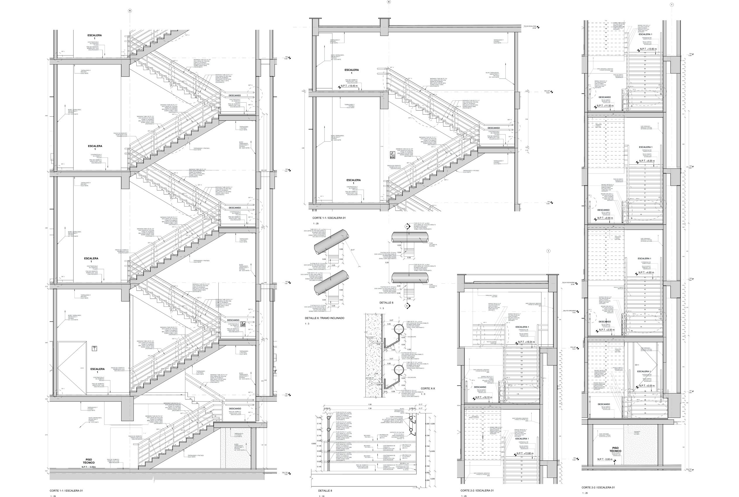
Hospital Casma

Ubicación: Casma

Alcance del trabajo:

  • Planimetria
  • Modelado 3D LOD3