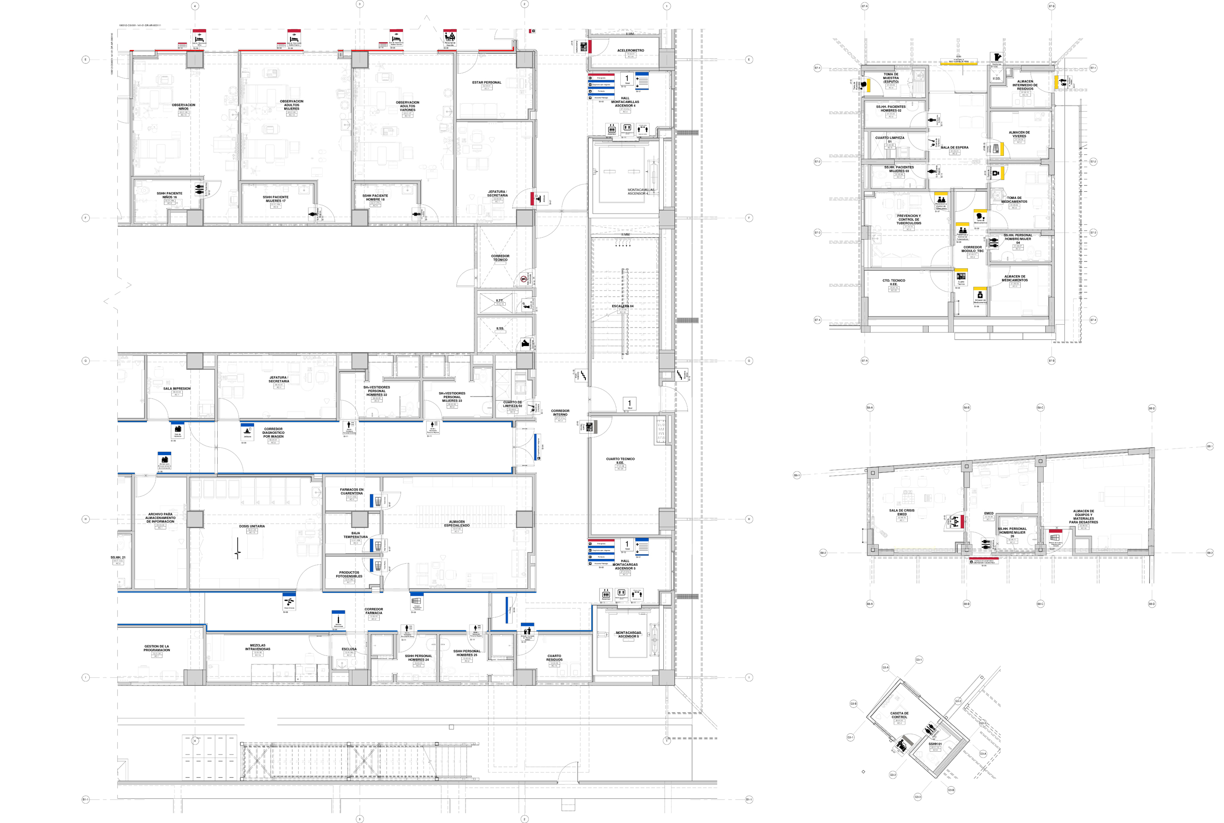
Hospital Recuay

Ubicación: Recuay

Alcance del trabajo:

  • Planimetria
  • Modelado 3D LOD3

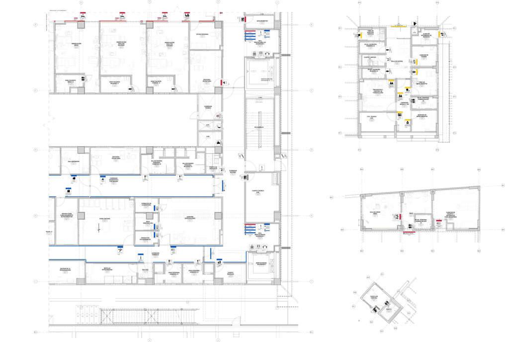
Hospital Recuay

Ubicación: Recuay

Alcance del trabajo:

  • Planimetria
  • Modelado 3D LOD3